Rotglà i Corbera  
  2008 - Rotglà i Corbera  
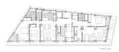
  El proyecto consiste en un edificio plurifamiliar de seis viviendas divididas en tres tipologías distintas. Se llega a esta solución como resultado del programa de necesidades del cliente y los condicionamientos urbanísticos. Las viviendas ocupan tanto la planta baja como las dos plantas en altura.  
  << anterior - proyecto -  siguiente>>  
  FOTOS Y PLANOS << volver  
click en las imágenes para ampliar
 
fotos           1 2 planos             1 2 3

       r+mcarq - estudio de arquitectura

                                                                                                          web design