Vivienda Pintor Sorolla  
  2006 - Rafelguaraf  
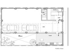
  En un solar de 161m2 en planta se proyecta una vivienda unifamiliar que, para aprovechar mejor la superficie del terreno e introducir la luz natural en el edificio, se organiza mediante un patio descubierto lateral, que llega a la planta baja. Para evitar excesivos desplazamientos, la vivienda se desarrolla completamente en planta primera, dejando la planta baja para garaje, patio, lavadero y barbacoa, en una zona abierta pero cubierta. Una vez más, la regularidad de la distribución permite adaptar un programa muy completo, a la vez que simplifica la estructura y los pasos de instalaciones.  
  << anterior - proyecto -  siguiente>>  
  FOTOS Y PLANOS << volver  
click en las imágenes para ampliar
 
fotos           1 2 3 planos             1 2 3

       r+mcarq - estudio de arquitectura

                                                                                                          web design